Casa indipendente in vendita

San Zeno Naviglio, Via diaz
€ 153.000
4 locali 4 locali
115 Mq 115 Mq
2 bagni 2 bagni

Casa indipendente in vendita

San Zeno Naviglio, Via diaz

Descrizione annuncio

COSA SAPERE SULLA CASA:

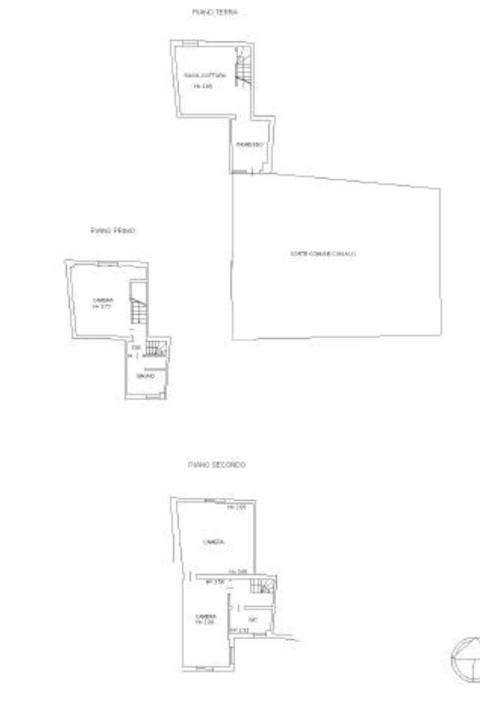
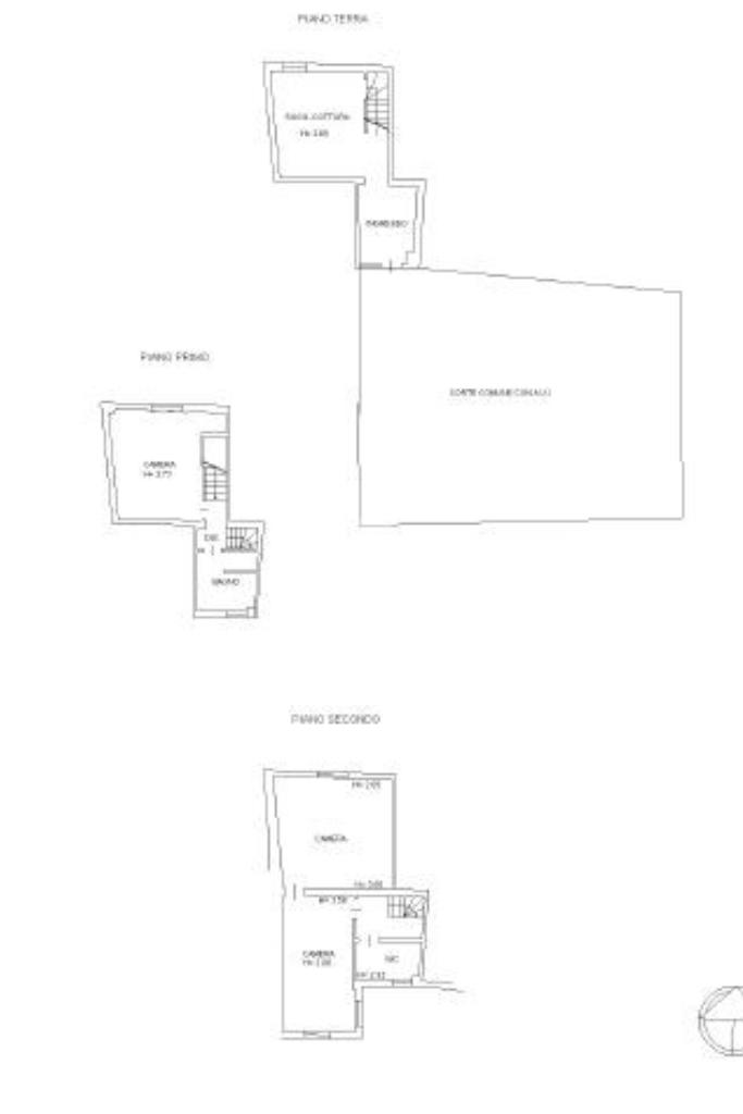
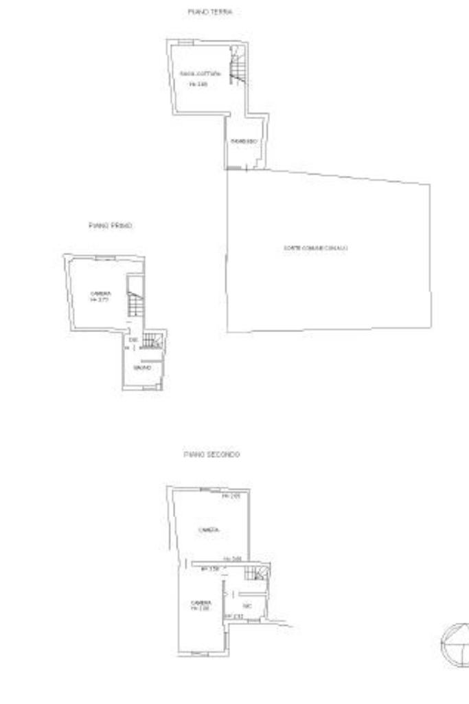
SOGGIORNO - CUCINA - TRE CAMERE DA LETTO - DUE BAGNI - POSTO AUTO.

PARTICOLARITA' E DESCRIZIONE:

A pochi minuti dal centro paese, all'interno di un cortile, proponiamo porzione di casa indipendente, ristrutturata, disposta su più livelli.

Al piano terra la soluzione è composta da comodo atrio d'ingresso che conduce nel soggiorno con cucina a vista.

Salendo le scale si raggiunge il primo piano dove troviamo un bagno con doccia e camera da letto.

Il secondo piano ospita una camera matrimoniale, una camera singola e un secondo bagno.

La casa è stata ritrutturata completamente ed è già pronta per essere abitata.

Non ci sono spese condominiali.

All'interno del cortile c'è la possibilità di lasciare l'auto.

.

.

.

.

.

.

.

.

.

.

_____________________________________

CERCHI LAVORO?

Cerchiamo n° 2 ragazzi/e motivati/e e dinamici/he da inserire nell'ufficio Tecnocasa di Borgosatollo.

Offriamo fisso + provvigioni.

Sono richiesti patente, automobile e diploma.

Per un colloquio conoscitivo inviare il CV a whatsapp 3292045889 o rivolgersi in ufficio.

Mostra tutto

Nelle vicinanze

Trasporto pubblico Trasporto pubblico
San Zeno-Folzano
San Zeno-Folzano
500 m
Via Risorgimento - sud
Via Risorgimento - sud
70 m
Via Risorgimento - nord
Via Risorgimento - nord
170 m
Ricariche auto elettriche Ricariche auto elettriche
Provide Cars San Zeno | EnelX
1,5 Km
Scuole Scuole
Scuola Primaria Angelo Canossi
290 m
Scuola Secondaria di Primo Grado Nella Berther
380 m
Scuola Materna Gianni Rodari
2,7 Km
Materna Comunale
2,9 Km
Farmacia Farmacia
Farmacia Dott. Abbiati
590 m
Farmacia Comunale 03 Folzano
910 m
Farmacia Bodini
2,5 Km
Supermercati Supermercati
Conad
1,8 Km
Family Market
2,6 Km
Esselunga
2,9 Km
Negozi Negozi
Forneria Fappani
2,8 Km
Bar Bar
Bar La Piazzetta
430 m
Bar 25010
590 m
Bar Più o Meno
1,4 Km
Effebar
2,7 Km
Ristoranti Ristoranti
Trattoria Naviglio
150 m
La Lobsteria
850 m
Ristorante al Forchettone
880 m
Trattoria Le Ferriere
1,3 Km
Dieta mediterranea
2,9 Km
Mostra tutto

Caratteristiche

Rif.:
61170149
Piano:
Su più livelli di 3
Totale piani:
3
Posti auto:
1
Camere da letto:
3
Arredamento:
Assente
Mostra tutto
Prezzo Prezzo
€ 153.000
Rata mutuo Rata mutuo
€ 714 / mese
Spese annue Spese annue
€ 0
Proponi il tuo prezzoProponi il tuo prezzo
Immobile valutato con T·Valuta

Classe Energetica

F
F
F
F
F
F
F
F
F
EP invernale del fabbricato:
EP estiva del fabbricato:
Anno di costruzione:
2000
Riscaldamento:
Autonomo
Tipo impianto:
A radiatori
Tipo alimentazione:
Metano

Ti interessa visionare l'immobile?

Fissa un appuntamento  Fissa un appuntamento

Richiedi informazioni

Clicca su Leggi per aprire l'informativa
* Questi campi sono obbligatori

Calcola il tuo mutuo

Semplice e senza impegno
Anticipo

( % )
Mutuo

( % )

pochi semplici passi

inserisci i tuoi dati
Questionario completato
Grazie per aver richiesto un appuntamento senza impegno con un nostro Consulente del Credito e Assicurativo.

Hai inserito correttamente tutti i dati necessari e a breve riceverai una e-mail con un link da convalidare per inviare i tuoi dati.
Affiliato
Borgosatollo Srl
Via IV Novembre, 184 25010 Borgosatollo (BS)

Il nostro staff


  • Livio Girelli
    Affiliato

  • Giulia Bonomi
    Collaboratrice

  • Erica Cassamali
    Coordinatrice

  • Rosy Gentile
    Affiliata

  • Marjana Ndoci
    Affiliata

  • Izabela Ndoci
    Coordinatrice

  • Simone Pellegrini
    Collaboratore
Via IV Novembre, 184 25010 Borgosatollo (BS)
Zona: Borgosatollo - Montirone - San Zeno Naviglio
Mostra su mappa
Orari: lunedì/venerdì 9.00-12.30/ 14.30-19.30, il sabato chiusura alle 16.00.
Affiliato
Borgosatollo Srl
Via IV Novembre, 184 25010 Borgosatollo (BS)

2026 Tecnocasa Franchising S.p.A. - P. IVA 08365160152 - Via Monte Bianco 60/A 20089 Rozzano (MI). Ogni agenzia ha un proprio titolare ed è autonoma. Privacy policy | Policy utilizzo | Cookie policy