Porzione di bifamiliare in vendita

Montirone, Via Bellini
€ 229.000
3 locali 3 locali
158 Mq 158 Mq
1 bagno 1 bagno

Porzione di bifamiliare in vendita

Montirone, Via Bellini

Descrizione annuncio

COSA SAPERE SULLA CASA:

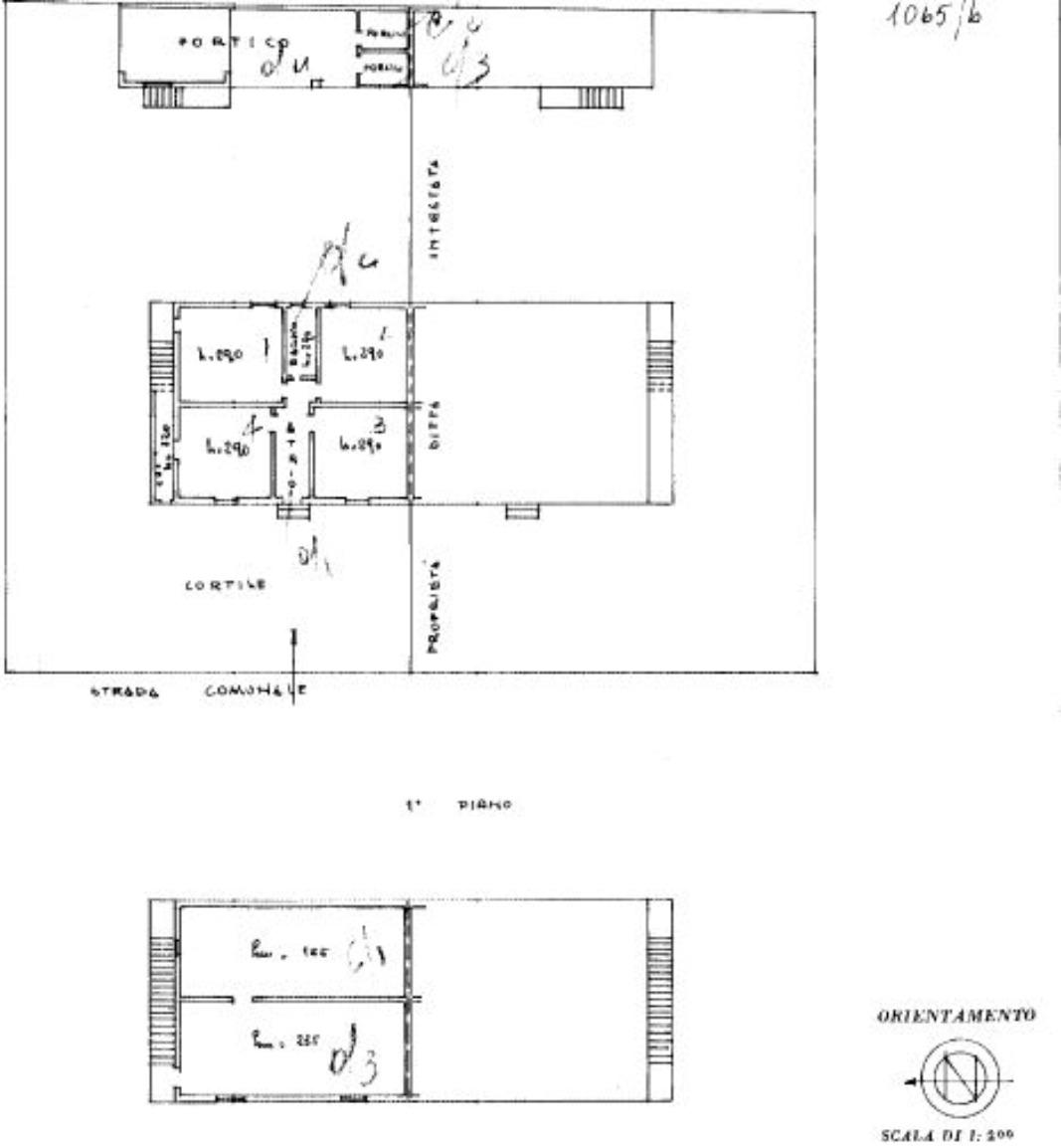
SOGGIORNO - CUCINA - SALA DA PRANZO - DUE CAMERE - BAGNO - SOTTOTETTO - GIARDINO - CANTINE - POSTO AUTO.

PARTICOLARITA' E DESCRIZIONE:

In zona residenziale, tranquilla e a pochi passi dal centro, proponiamo villa bifamiliare da ristrutturare, disposta su due livelli.

Dall'ingresso indipendente andiamo verso il portico che conduce all'entrata della casa che porta nella zona giorno composta da cucina separata non abitabile, sala da pranzo e soggiorno. Tramite il disimpegno si raggiunge la zona notte dotata di camera matrimoniale, camera doppia e bagno con doccia.

Salendo al piano superiore c'è un ulteriore spazio adibito a sottotetto.

Sul retro della casa, al piano terra, troviamo delle cantine spaziose e uno spazio dove è possibile ricavare un posto auto scoperto.

La casa è valorizzata anche da uno spazio verde esclusivo sul fronte.

La costruzione dell'immobile risale agli anni '60 pertanto necessita di lavori di ristrutturazione.



.

.

.

.

.

.

.

.

.

.

.

_____________________________________

CERCHI LAVORO? Cerchiamo n° 2 ragazzi/e motivati/e e dinamici/he da inserire nell'ufficio Tecnocasa di Borgosatollo. Offriamo fisso + provvigioni. Sono richiesti patente, automobile e diploma.

Per un colloquio conoscitivo inviare il CV a whatsapp 3292045889 o rivolgersi in ufficio.

Mostra tutto

Nelle vicinanze

Trasporto pubblico Trasporto pubblico
Montirone
Montirone
860 m
Via Santissima n 177 (risvolta S. Maria)
Via Santissima n 177 (risvolta S. Maria)
2,5 Km
Via Santissima n 144
Via Santissima n 144
2,8 Km
Scuole Scuole
Scuola Primaria
200 m
Scuola Secondaria di Primo Grado
420 m
Farmacia Farmacia
Farmacia Bicchierai Bandera
340 m
Supermercati Supermercati
Italmark
840 m
LD Market
850 m
Bar Bar
Bar
260 m
Ristoranti Ristoranti
Trattoria Bontempi
380 m
La Rotonda Risto Pizza Dancing
1,4 Km
Primo Piano
2,7 Km
Mostra tutto

Caratteristiche

Rif.:
61211154
Piano:
Su più livelli di 1
Totale piani:
1
Posti auto:
1
Camere da letto:
2
Arredamento:
Assente
Mostra tutto
Prezzo Prezzo
€ 229.000
Rata mutuo Rata mutuo
€ 1.087 / mese
Spese annue Spese annue
€ 0
Proponi il tuo prezzoProponi il tuo prezzo

Classe Energetica

G
G
G
G
G
G
G
G
G
EP invernale del fabbricato:
EP estiva del fabbricato:
Anno di costruzione:
1960
Riscaldamento:
Autonomo
Tipo impianto:
A radiatori
Tipo alimentazione:
Metano

Ti interessa visionare l'immobile?

Fissa un appuntamento  Fissa un appuntamento

Richiedi informazioni

Clicca su Leggi per aprire l'informativa
* Questi campi sono obbligatori

Calcola il tuo mutuo

Semplice e senza impegno
Anticipo

( % )
Mutuo

( % )

pochi semplici passi

inserisci i tuoi dati
Questionario completato
Grazie per aver richiesto un appuntamento senza impegno con un nostro Consulente del Credito e Assicurativo.

Hai inserito correttamente tutti i dati necessari e a breve riceverai una e-mail con un link da convalidare per inviare i tuoi dati.
Affiliato
Borgosatollo Srl
Via IV Novembre, 184 25010 Borgosatollo (BS)

Il nostro staff


  • Livio Girelli
    Affiliato

  • Giulia Bonomi
    Collaboratrice

  • Erica Cassamali
    Coordinatrice

  • Rosy Gentile
    Affiliata

  • Marjana Ndoci
    Affiliata

  • Simone Pellegrini
    Collaboratore
Via IV Novembre, 184 25010 Borgosatollo (BS)
Zona: Borgosatollo - Montirone - San Zeno Naviglio
Mostra su mappa
Orari: lunedì/venerdì 9.00-12.30/ 14.30-19.30, il sabato chiusura alle 16.00.
Affiliato
Borgosatollo Srl
Via IV Novembre, 184 25010 Borgosatollo (BS)

2026 Tecnocasa Franchising S.p.A. - P. IVA 08365160152 - Via Monte Bianco 60/A 20089 Rozzano (MI). Ogni agenzia ha un proprio titolare ed è autonoma. Privacy policy | Policy utilizzo | Cookie policy