Villa singola in vendita

Montirone, Via pedrona
€ 565.000
4 locali 4 locali
284 Mq 284 Mq
2 bagni 2 bagni

Villa singola in vendita

Montirone, Via pedrona

Descrizione annuncio

COSA SAPERE SULLA CASA:

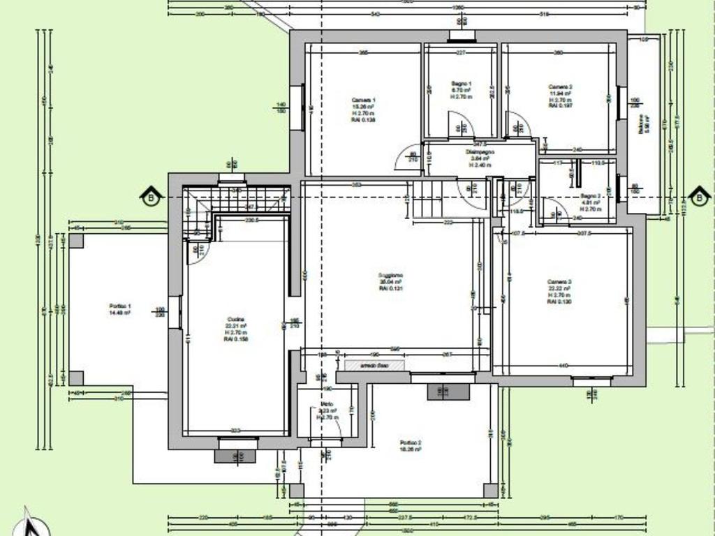
SOGGIORNO - CUCINA - SALA DA PRANZO - TRE CAMERE DA LETTO - DUE BAGNI - TAVERNA - LAVANDERIA - BOX - GIARDINO.

PARTICOLARITA' E DESCRIZIONE:

In zona periferica del paese, circondata dal verde, proponiamo villa singola completamente ristrutturata nel 2023.

Dall'ingresso pedonale, tramite una scalinata, arriviamo all'entrata della casa che ospita un comodo atrio d'ingresso che conduce nell'ampia zona giorno composta da sala da pranzo, soggiorno e cucina separata.

Salendo qualche gradino si raggiunge la zona notte che ospita camera matrimoniale con bagno privato, camera singola attualmente utilizzata come studio, bagno padronale con vasca da bagno e seconda camera da letto matrimoniale.

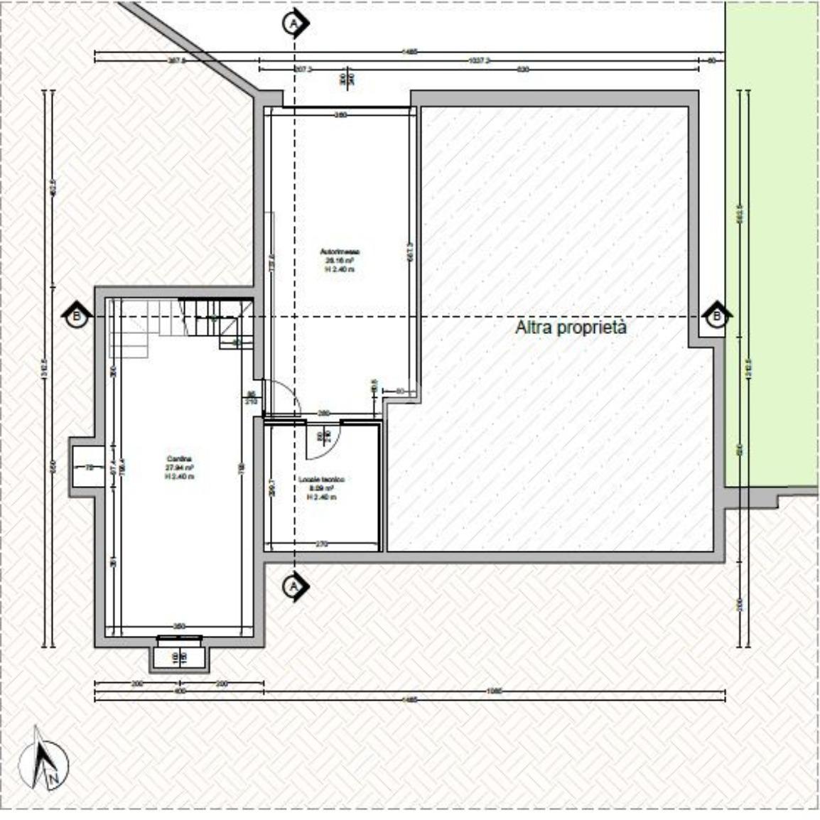
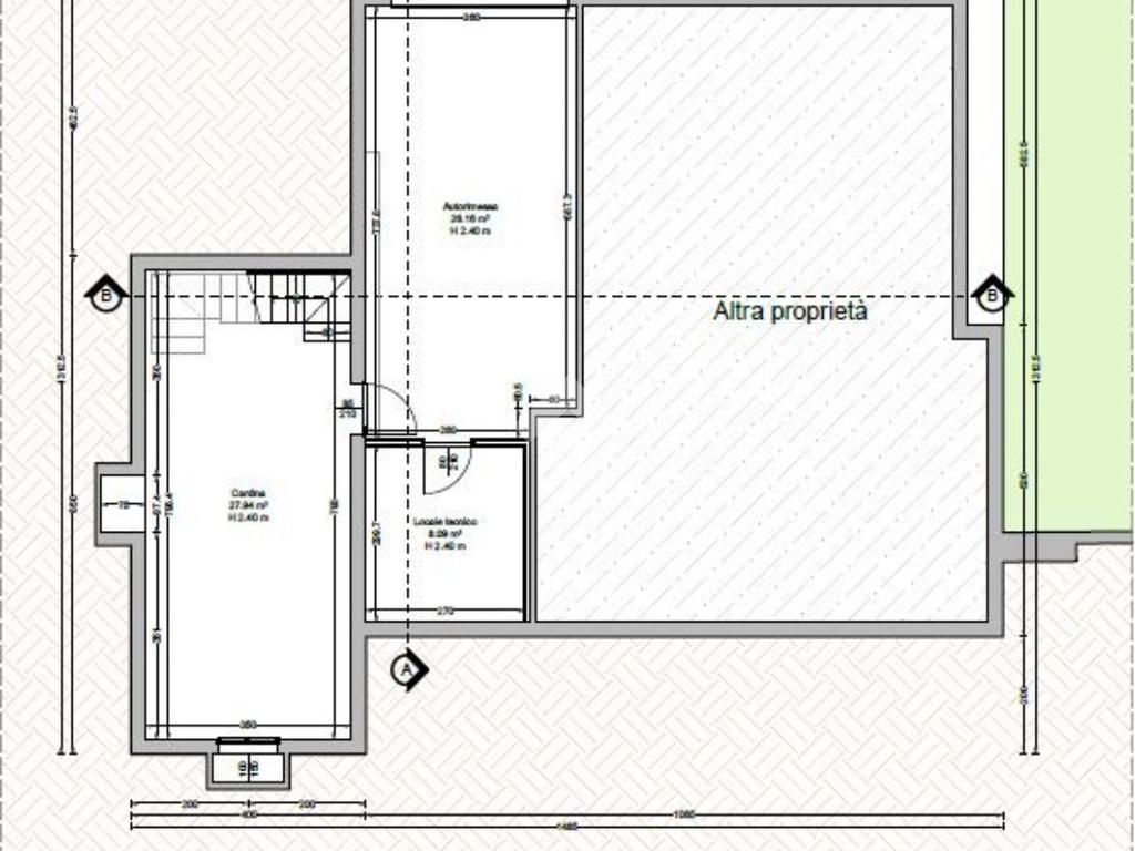
La villa si completa al piano interrato con la taverna. zona lavanderia e autorimessa da cui si accede tramite un passo carraio in comune con un'altra unità abitativa.

La casa è valorizzata anche da due portici abitabili esterni e un giardino esclusivo che circonda la casa.

Le finiture all'interno dell'immobile sono di ottima qualità, è presente la batteria d'accumulo, fotovoltaico da 12 kw, riscaldamento a pavimento, impianto di raffrescamento e pompa di calore.

Si precisa che l'arredamento non è incluso nel prezzo di vendita, ma c'è la possibilità di acquistarlo.

.

.

.

.

.

.

.

_____________________________________

CERCHI LAVORO?

Cerchiamo n° 2 ragazzi/e motivati/e e dinamici/he da inserire nell'ufficio Tecnocasa di Borgosatollo.

Offriamo fisso + provvigioni. Sono richiesti patente, automobile e diploma.

Per un colloquio conoscitivo inviare il CV a whatsapp 3292045889 o rivolgersi in ufficio.

Mostra tutto

Nelle vicinanze

Trasporto pubblico Trasporto pubblico
Montirone
Montirone
730 m
Via Santissima n 177 (risvolta S. Maria)
Via Santissima n 177 (risvolta S. Maria)
2,4 Km
Via Santissima n 144
Via Santissima n 144
2,7 Km
Scuole Scuole
Scuola Primaria
410 m
Scuola Secondaria di Primo Grado
640 m
Farmacia Farmacia
Farmacia Bicchierai Bandera
560 m
Supermercati Supermercati
LD Market
900 m
Italmark
930 m
Bar Bar
Bar
490 m
Ristoranti Ristoranti
Trattoria Bontempi
580 m
La Rotonda Risto Pizza Dancing
1,1 Km
Primo Piano
2,9 Km
Mostra tutto

Caratteristiche

Rif.:
61165036
Piano:
2 di 1 (Piano terra con giardino)
Box:
1
Camere da letto:
3
Arredamento:
Assente
Condizionamento:
Autonomo
Mostra tutto
Prezzo Prezzo
€ 565.000
Rata mutuo Rata mutuo
€ 2.638 / mese
Spese annue Spese annue
€ 0
Proponi il tuo prezzoProponi il tuo prezzo
Immobile valutato con T·Valuta

Classe Energetica

B
B
B
B
B
B
B
B
B
EP invernale del fabbricato:
EP estiva del fabbricato:
Anno di costruzione:
1992
Riscaldamento:
Autonomo
Tipo impianto:
A pavimento
Tipo alimentazione:
Altro

Ti interessa visionare l'immobile?

Fissa un appuntamento  Fissa un appuntamento

Richiedi informazioni

Clicca su Leggi per aprire l'informativa
* Questi campi sono obbligatori

Calcola il tuo mutuo

Semplice e senza impegno
Anticipo

( % )
Mutuo

( % )

pochi semplici passi

inserisci i tuoi dati
Questionario completato
Grazie per aver richiesto un appuntamento senza impegno con un nostro Consulente del Credito e Assicurativo.

Hai inserito correttamente tutti i dati necessari e a breve riceverai una e-mail con un link da convalidare per inviare i tuoi dati.
Affiliato
Borgosatollo Srl
Via IV Novembre, 184 25010 Borgosatollo (BS)

Il nostro staff


  • Livio Girelli
    Affiliato

  • Giulia Bonomi
    Collaboratrice

  • Erica Cassamali
    Coordinatrice

  • Rosy Gentile
    Affiliata

  • Marjana Ndoci
    Affiliata

  • Izabela Ndoci
    Coordinatrice

  • Simone Pellegrini
    Collaboratore
Via IV Novembre, 184 25010 Borgosatollo (BS)
Zona: Borgosatollo - Montirone - San Zeno Naviglio
Mostra su mappa
Orari: lunedì/venerdì 9.00-12.30/ 14.30-19.30, il sabato chiusura alle 16.00.
Affiliato
Borgosatollo Srl
Via IV Novembre, 184 25010 Borgosatollo (BS)

2026 Tecnocasa Franchising S.p.A. - P. IVA 08365160152 - Via Monte Bianco 60/A 20089 Rozzano (MI). Ogni agenzia ha un proprio titolare ed è autonoma. Privacy policy | Policy utilizzo | Cookie policy