Villa a schiera in vendita

Montirone, Via Laura Cereto - Campagna
€ 309.000
4 locali 4 locali
130 Mq 130 Mq
3 bagni 3 bagni

Villa a schiera in vendita

Montirone, Via Laura Cereto - Campagna

Descrizione annuncio

COSA SAPERE SULLA CASA:

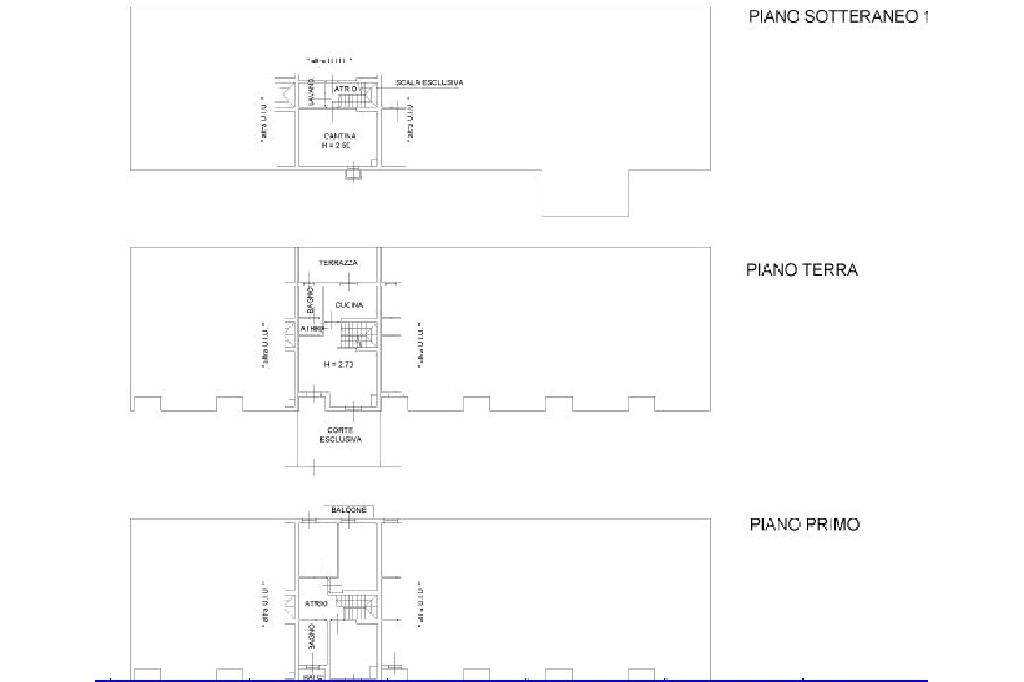
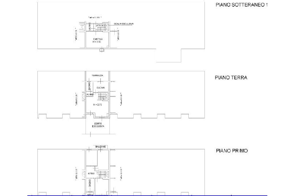
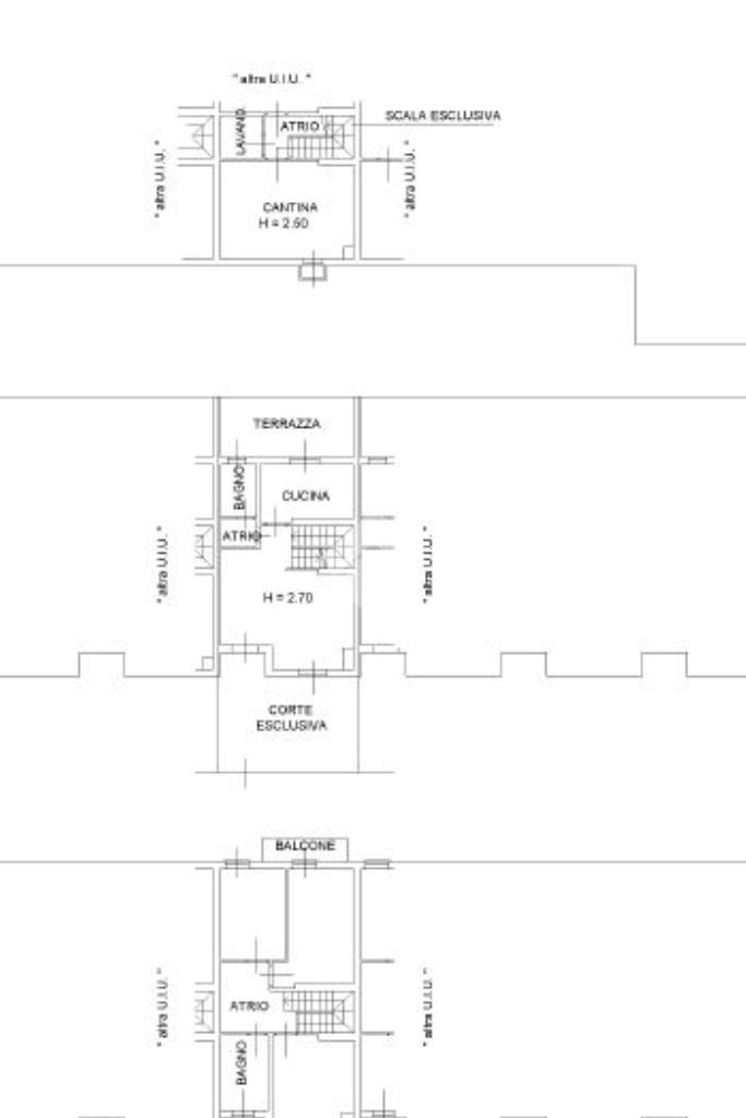
SOGGIORNO - CUCINA ABITABILE SEPARATA- DUE CAMERE MATRIMONIALI - UNA CAMERA DOPPIA - DUE BAGNI - BALCONE - TERAZZA - CANTINA - GIARDINO - TAVERNA - LAVENDERIA - BOX DOPPIO.

PARTICOLARITA' E DESCRIZIONE:

In zona tranquilla e ben servita, a pochi passi dal centro del paese, proponiamo villa a schiera centrale che gode di ottime metrature disposta su tre livelli.

Dall'ingresso si raggiunge il giardino esclusivo che permette di accedere all'abitazione.

Il piano terra ospita la zona giorno composta da ampio soggiorno luminoso, cucina separata abitabile e bagno di servizio.

Al piano primo accediamo alla zona notte che ospita un bagno con balcone, due camere da letto matrimoniali e una camera doppia.

Completano la proprietĂ  una splendita terazza, giardino privato esclusivo, taverna, lavanderia, cantina e box doppio.

Inoltre vi è presente il pannello fotovoltaico ed il riscaldamento a pavimento.

L'immobile offre ampi spazi interni ed esterni, perfetti per chi cerca comfort e privacy.

.

.

.

.

.

.

_____________

CERCHI LAVORO?

Cerchiamo n° 2 ragazzi/e motivati/e e dinamici/he da inserire nell'ufficio Tecnocasa di Borgosatollo.

Offriamo fisso + provvigioni.
Sono richiesti patente, automobile e diploma.

Per un colloquio conoscitivo
inviare il CV a
whatsapp 3292045889 o rivolgersi in ufficio.

Mostra tutto

Nelle vicinanze

Trasporto pubblico Trasporto pubblico
Montirone
Montirone
350 m
Via Santissima n 177 (risvolta S. Maria)
Via Santissima n 177 (risvolta S. Maria)
1,9 Km
Via Santissima n 144
Via Santissima n 144
2,2 Km
Scuole Scuole
Scuola Primaria
560 m
Scuola Secondaria di Primo Grado
740 m
Scuola Materna Gianni Rodari
2,7 Km
Farmacia Farmacia
Farmacia Bicchierai Bandera
810 m
Farmacia Bodini
2,8 Km
Supermercati Supermercati
LD Market
500 m
Italmark
600 m
Negozi Negozi
Keys
2,8 Km
Bar Bar
Bar
740 m
Ristoranti Ristoranti
Trattoria Bontempi
920 m
La Rotonda Risto Pizza Dancing
1,2 Km
Primo Piano
2,6 Km
Mostra tutto

Caratteristiche

Rif.:
61132439
Piano:
3 di 3 (Piano su piĂš livelli)
Box:
2
Balconi:
1
Terrazzi:
1
Camere da letto:
3
Mostra tutto
Prezzo Prezzo
€ 309.000
Rata mutuo Rata mutuo
€ 1.456 / mese
Spese annue Spese annue
€ 50
Proponi il tuo prezzoProponi il tuo prezzo

Classe Energetica

D
D
D
D
D
D
D
D
D
EP invernale del fabbricato:
EP estiva del fabbricato:
Anno di costruzione:
2008
Riscaldamento:
Autonomo
Tipo impianto:
A pavimento
Tipo alimentazione:
Metano

Ti interessa visionare l'immobile?

Fissa un appuntamento  Fissa un appuntamento

Richiedi informazioni

Clicca su Leggi per aprire l'informativa
* Questi campi sono obbligatori

Calcola il tuo mutuo

Semplice e senza impegno
Anticipo

( % )
Mutuo

( % )

pochi semplici passi

inserisci i tuoi dati
Questionario completato
Grazie per aver richiesto un appuntamento senza impegno con un nostro Consulente del Credito e Assicurativo.

Hai inserito correttamente tutti i dati necessari e a breve riceverai una e-mail con un link da convalidare per inviare i tuoi dati.
Affiliato
Borgosatollo Srl
Via IV Novembre, 184 25010 Borgosatollo (BS)

Il nostro staff


  • Livio Girelli
    Affiliato

  • Giulia Bonomi
    Collaboratrice

  • Erica Cassamali
    Coordinatrice

  • Rosy Gentile
    Affiliata

  • Marjana Ndoci
    Affiliata

  • Izabela Ndoci
    Coordinatrice

  • Simone Pellegrini
    Collaboratore
Via IV Novembre, 184 25010 Borgosatollo (BS)
Zona: Borgosatollo - Montirone - San Zeno Naviglio
Mostra su mappa
Orari: lunedĂŹ/venerdĂŹ 9.00-12.30/ 14.30-19.30, il sabato chiusura alle 16.00.
Affiliato
Borgosatollo Srl
Via IV Novembre, 184 25010 Borgosatollo (BS)

2026 Tecnocasa Franchising S.p.A. - P. IVA 08365160152 - Via Monte Bianco 60/A 20089 Rozzano (MI). Ogni agenzia ha un proprio titolare ed è autonoma. Privacy policy | Policy utilizzo | Cookie policy