Bilocale in vendita

Montirone, Via I Maggio
€ 119.000
2 locali 2 locali
50 Mq 50 Mq
1 bagno 1 bagno

Bilocale in vendita

Montirone, Via I Maggio

Descrizione annuncio

COSA SAPERE SULLA CASA:

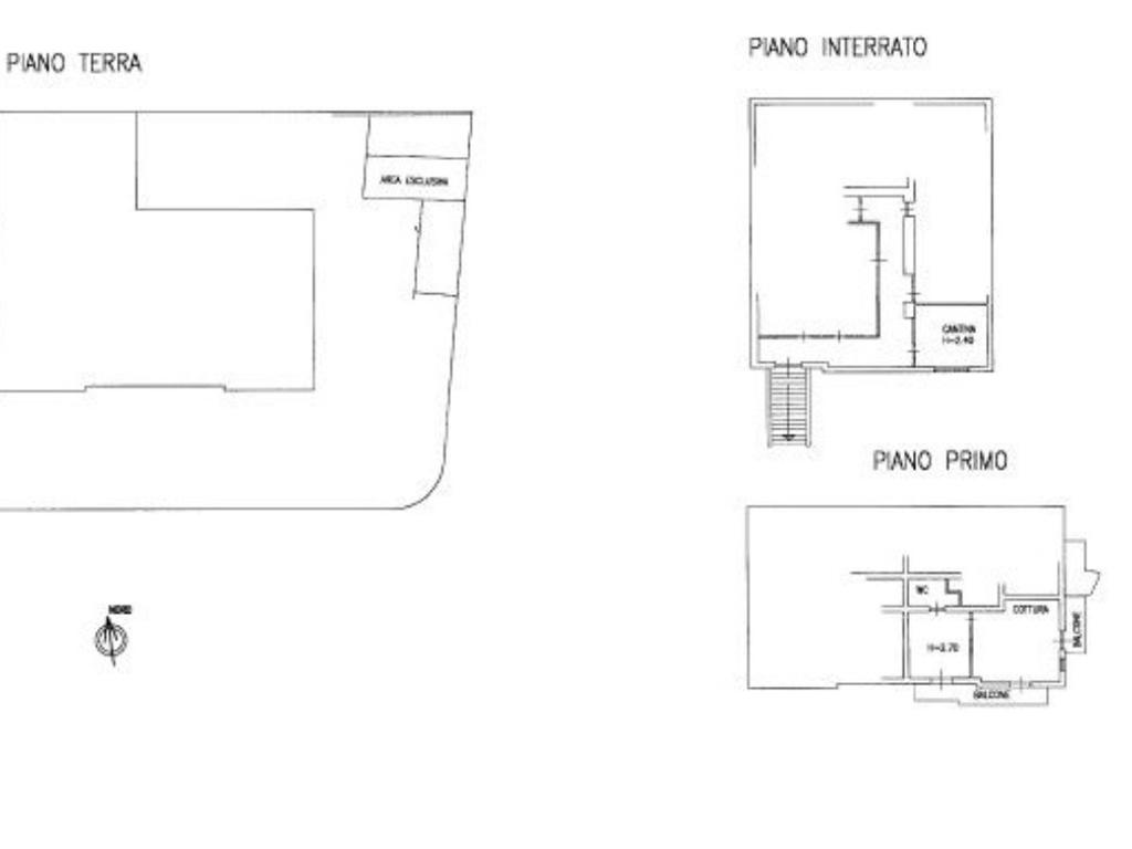
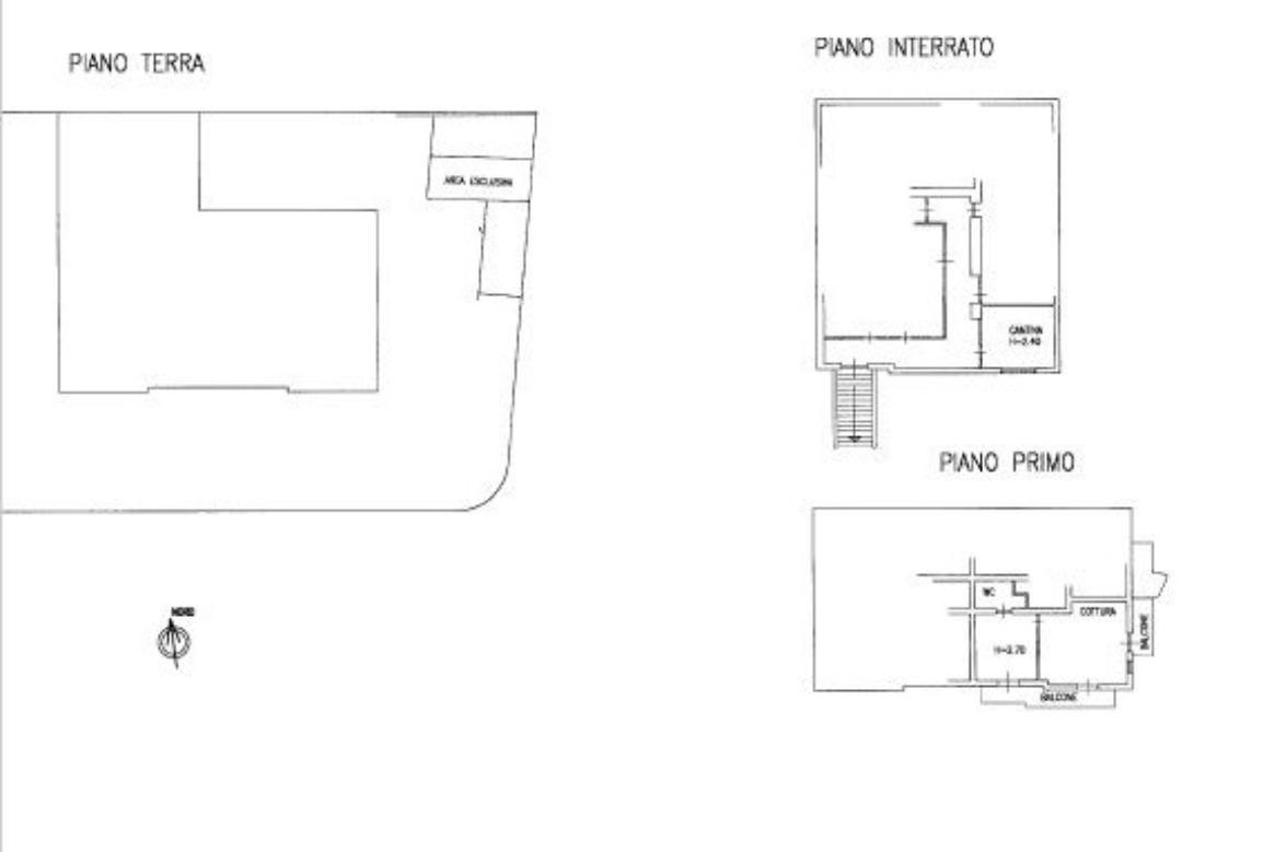
SOGGIORNO - CUCINA - CAMERA - BAGNO - BALCONE - POSTO AUTO - CANTINA.

PARTICOLARITA' E DESCRIZIONE:

In tranquilla zona residenziale, all'interno di un contesto di poche unità abitative, proponiamo appartamento bilocale al primo piano.

La soluzione è composta da zona giorno open space con cucina a vista e soggiorno; dal disimpegno si raggiunge la zona notte dotata di camera matrimoniale e bagno con doccia e attacchi per la lavatrice. E' presente un piccolo balcone all'ingresso ed un secondo balcone da cui si accede dal soggiorno e dalla camera da letto.

Per concludere, al piano terra, la casa si completa di un posto auto scoperto di proprietà e di una cantina nel piano interrato.

La casa è abitata dall'inquilino pertanto viene venduta per uso investimento.

Spese condominiali contenute.



.

.

.

.

.

.

.

.

.

.

.

_____________________________________

CERCHI LAVORO? Cerchiamo n° 2 ragazzi/e motivati/e e dinamici/he da inserire nell'ufficio Tecnocasa di Borgosatollo. Offriamo fisso + provvigioni. Sono richiesti patente, automobile e diploma.

Per un colloquio conoscitivo inviare il CV a whatsapp 3292045889 o rivolgersi in ufficio.

Mostra tutto

Nelle vicinanze

Trasporto pubblico Trasporto pubblico
Montirone
Montirone
1,1 Km
Via Santissima n 177 (risvolta S. Maria)
Via Santissima n 177 (risvolta S. Maria)
2,7 Km
Trasporto pubblico
2,9 Km
Scuole Scuole
Scuola Primaria
320 m
Scuola Secondaria di Primo Grado
450 m
Farmacia Farmacia
Farmacia Bicchierai Bandera
290 m
Supermercati Supermercati
Italmark
990 m
LD Market
1,0 Km
Bar Bar
Bar
210 m
Ristoranti Ristoranti
Trattoria Bontempi
240 m
La Rotonda Risto Pizza Dancing
1,4 Km
Primo Piano
2,8 Km
Mostra tutto

Caratteristiche

Rif.:
61210564
Piano:
1 di 1 (Piano medio)
Posti auto:
1
Balconi:
2
Camere da letto:
1
Arredamento:
Assente
Mostra tutto
Prezzo Prezzo
€ 119.000
Rata mutuo Rata mutuo
€ 565 / mese
Spese annue Spese annue
€ 50
Proponi il tuo prezzoProponi il tuo prezzo

Classe Energetica

C
C
C
C
C
C
C
C
C
EP invernale del fabbricato:
EP estiva del fabbricato:
Anno di costruzione:
2004
Riscaldamento:
Autonomo
Tipo impianto:
A radiatori
Tipo alimentazione:
Metano

Ti interessa visionare l'immobile?

Fissa un appuntamento  Fissa un appuntamento

Richiedi informazioni

Clicca su Leggi per aprire l'informativa
* Questi campi sono obbligatori

Calcola il tuo mutuo

Semplice e senza impegno
Anticipo

( % )
Mutuo

( % )

pochi semplici passi

inserisci i tuoi dati
Questionario completato
Grazie per aver richiesto un appuntamento senza impegno con un nostro Consulente del Credito e Assicurativo.

Hai inserito correttamente tutti i dati necessari e a breve riceverai una e-mail con un link da convalidare per inviare i tuoi dati.
Affiliato
Borgosatollo Srl
Via IV Novembre, 184 25010 Borgosatollo (BS)

Il nostro staff


  • Livio Girelli
    Affiliato

  • Giulia Bonomi
    Collaboratrice

  • Erica Cassamali
    Coordinatrice

  • Rosy Gentile
    Affiliata

  • Marjana Ndoci
    Affiliata

  • Simone Pellegrini
    Collaboratore
Via IV Novembre, 184 25010 Borgosatollo (BS)
Zona: Borgosatollo - Montirone - San Zeno Naviglio
Mostra su mappa
Orari: lunedì/venerdì 9.00-12.30/ 14.30-19.30, il sabato chiusura alle 16.00.
Affiliato
Borgosatollo Srl
Via IV Novembre, 184 25010 Borgosatollo (BS)

2026 Tecnocasa Franchising S.p.A. - P. IVA 08365160152 - Via Monte Bianco 60/A 20089 Rozzano (MI). Ogni agenzia ha un proprio titolare ed è autonoma. Privacy policy | Policy utilizzo | Cookie policy