Monolocale in vendita

Montirone, Piazza Manzoni
€ 84.000
1 locale 1 locale
40 Mq 40 Mq
1 bagno 1 bagno

Monolocale in vendita

Montirone, Piazza Manzoni

Descrizione annuncio

COSA SAPERE SULLA CASA:

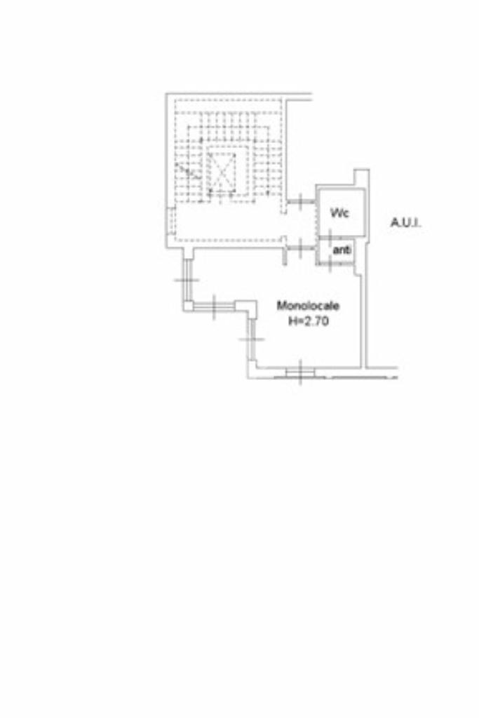
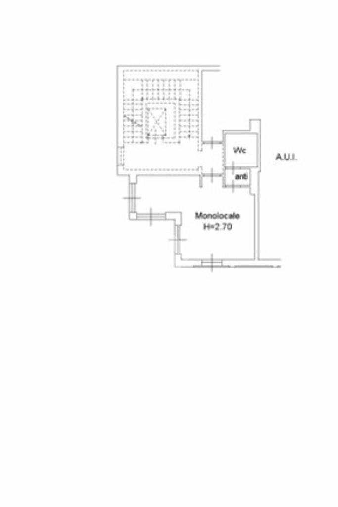
CUCINA - ZONA GIORNO/ NOTTE - BAGNO - BOX AUTO - CANTINA.

PARTICOLARITA' E DESCRIZIONE:

In un tranquillo complesso condominiale, a breve distanza dal centro del paese, proponiamo in vendita un monolocale recentemente ristrutturato, ideale come abitazione principale o investimento.

L'immobile è composto da un unico ambiente luminoso con angolo cottura, zona notte e bagno.

Completa la proprietà un box auto privato e una cantina di pertinenza.

Le spese condominiali ammontano a circa 300€ annui, comprensive di amministratore, manutenzione delle parti comuni e assicurazione.

Soluzione comoda, moderna e pronta per essere abitata.

.

.

.

.

.

.

.

.

.

_____________________________________

CERCHI LAVORO?

Cerchiamo n° 2 ragazzi/e motivati/e e dinamici/he da inserire nell'ufficio Tecnocasa di Borgosatollo.

Offriamo fisso + provvigioni.
Sono richiesti patente, automobile e diploma.

Per un colloquio conoscitivo
inviare il CV a
whatsapp 3292045889 o rivolgersi in ufficio.

Mostra tutto

Nelle vicinanze

Trasporto pubblico Trasporto pubblico
Montirone
Montirone
1,1 Km
Via Santissima n 177 (risvolta S. Maria)
Via Santissima n 177 (risvolta S. Maria)
2,7 Km
Trasporto pubblico
2,7 Km
Scuole Scuole
Scuola Primaria
200 m
Scuola Secondaria di Primo Grado
260 m
Farmacia Farmacia
Farmacia Bicchierai Bandera
100 m
Supermercati Supermercati
Italmark
850 m
LD Market
910 m
Negozi Negozi
Keys
2,9 Km
Bar Bar
Bar
30 m
Ristoranti Ristoranti
Trattoria Bontempi
190 m
La Rotonda Risto Pizza Dancing
1,6 Km
Primo Piano
2,6 Km
Ristoranti
2,9 Km
Mostra tutto

Caratteristiche

Rif.:
61138512
Piano:
1 di 4 con ascensore (Piano medio)
Box:
1
Arredamento:
Assente
Condizionamento:
Autonomo
Ascensore:
Mostra tutto
Prezzo Prezzo
€ 84.000
Rata mutuo Rata mutuo
€ 392 / mese
Spese annue Spese annue
€ 300
Proponi il tuo prezzoProponi il tuo prezzo

Classe Energetica

C
C
C
C
C
C
C
C
C
EP invernale del fabbricato:
EP estiva del fabbricato:
Anno di costruzione:
2007
Riscaldamento:
Autonomo
Tipo impianto:
A radiatori
Tipo alimentazione:
Aria

Ti interessa visionare l'immobile?

Fissa un appuntamento  Fissa un appuntamento

Richiedi informazioni

Clicca su Leggi per aprire l'informativa
* Questi campi sono obbligatori

Calcola il tuo mutuo

Semplice e senza impegno
Anticipo

( % )
Mutuo

( % )

pochi semplici passi

inserisci i tuoi dati
Questionario completato
Grazie per aver richiesto un appuntamento senza impegno con un nostro Consulente del Credito e Assicurativo.

Hai inserito correttamente tutti i dati necessari e a breve riceverai una e-mail con un link da convalidare per inviare i tuoi dati.
Affiliato
Borgosatollo Srl
Via IV Novembre, 184 25010 Borgosatollo (BS)

Il nostro staff


  • Livio Girelli
    Affiliato

  • Giulia Bonomi
    Collaboratrice

  • Erica Cassamali
    Coordinatrice

  • Rosy Gentile
    Affiliata

  • Marjana Ndoci
    Affiliata

  • Izabela Ndoci
    Coordinatrice

  • Simone Pellegrini
    Collaboratore
Via IV Novembre, 184 25010 Borgosatollo (BS)
Zona: Borgosatollo - Montirone - San Zeno Naviglio
Mostra su mappa
Orari: lunedì/venerdì 9.00-12.30/ 14.30-19.30, il sabato chiusura alle 16.00.
Affiliato
Borgosatollo Srl
Via IV Novembre, 184 25010 Borgosatollo (BS)

2026 Tecnocasa Franchising S.p.A. - P. IVA 08365160152 - Via Monte Bianco 60/A 20089 Rozzano (MI). Ogni agenzia ha un proprio titolare ed è autonoma. Privacy policy | Policy utilizzo | Cookie policy