Ter. residenziale in vendita

Borgosatollo, Via San Francesco
€ 137.000
700 Mq 700 Mq

Ter. residenziale in vendita

Borgosatollo, Via San Francesco

Descrizione annuncio

COSA SAPERE SULLA CASA:

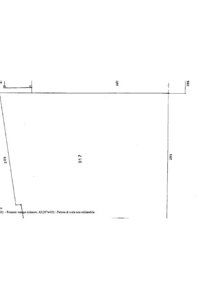
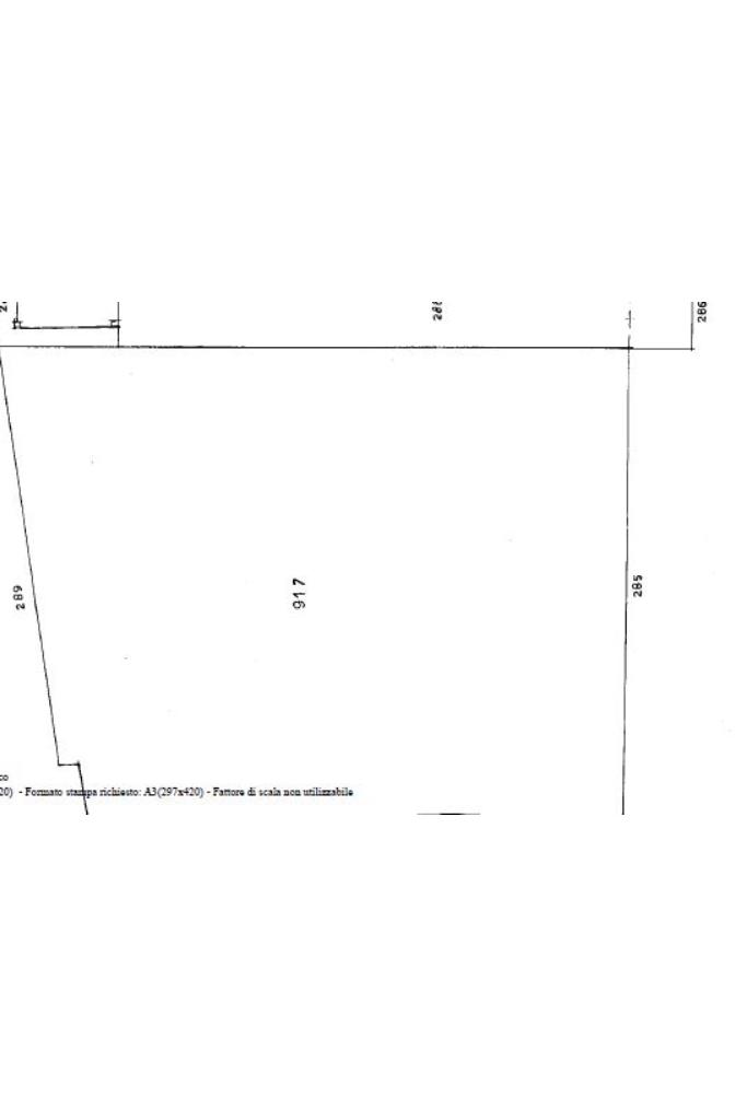
TERRENO EDIFICABILE DI 700 MQ

PARTICOLARITA' E DESCRIZIONE:


Proponiamo in vendita terreno edificabile di 700 mq, ideale per la realizzazione di una casa singola o di una piccola struttura residenziale.

Il lotto è pianeggiante, facilmente accessibile e situato in una zona tranquilla ma ben collegata ai principali servizi.

Caratteristiche principali:

• Superficie: 700 mq

• Destinazione d’uso: edificabile

• Accesso comodo da strada principale

• Contesto residenziale e ottima esposizione

• Disponibilità immediata


Soluzione ideale per chi desidera costruire la propria abitazione su misura o per investimento.

.

.

.

.

.

.

_____________________________________

CERCHI LAVORO?

Cerchiamo n° 2 ragazzi/e motivati/e e dinamici/he da inserire nell'ufficio Tecnocasa di Borgosatollo.

Offriamo fisso + provvigioni.
Sono richiesti patente, automobile e diploma.

Per un colloquio conoscitivo
inviare il CV a
whatsapp 3292045889 o rivolgersi in ufficio.

Mostra tutto

Nelle vicinanze

Trasporto pubblico Trasporto pubblico
Montirone
Montirone
2,3 Km
Via Santissima n 120
Via Santissima n 120
280 m
Via Santissima n 161
Via Santissima n 161
290 m
Scuole Scuole
Scuola Materna Gianni Rodari
340 m
Farmacia Farmacia
Farmacia Bodini
500 m
Supermercati Supermercati
Conad
1,2 Km
LD Market
2,4 Km
Italmark
2,6 Km
Bar Bar
Discoteca Paradiso
3,0 Km
Ristoranti Ristoranti
La Rotonda Risto Pizza Dancing
2,8 Km
Mostra tutto

Caratteristiche

Rif.:
61153501
Piano:
Terra
Arredamento:
Assente
Condizionamento:
Assente
Ascensore:
No
Riscaldamento:
Assente
Mostra tutto
Prezzo Prezzo
€ 137.000
Rata mutuo Rata mutuo
€ 646 / mese
Spese annue Spese annue
€ 0
Proponi il tuo prezzoProponi il tuo prezzo

Classe Energetica

G
G
G
G
G
G
G
G
G
EP invernale del fabbricato:
EP estiva del fabbricato:
Anno di costruzione:
1900
Riscaldamento:
Assente

Ti interessa visionare l'immobile?

Fissa un appuntamento  Fissa un appuntamento

Richiedi informazioni

Clicca su Leggi per aprire l'informativa
* Questi campi sono obbligatori

Calcola il tuo mutuo

Semplice e senza impegno
Anticipo

( % )
Mutuo

( % )

pochi semplici passi

inserisci i tuoi dati
Questionario completato
Grazie per aver richiesto un appuntamento senza impegno con un nostro Consulente del Credito e Assicurativo.

Hai inserito correttamente tutti i dati necessari e a breve riceverai una e-mail con un link da convalidare per inviare i tuoi dati.
Affiliato
Borgosatollo Srl
Via IV Novembre, 184 25010 Borgosatollo (BS)

Il nostro staff


  • Livio Girelli
    Affiliato

  • Giulia Bonomi
    Collaboratrice

  • Erica Cassamali
    Coordinatrice

  • Rosy Gentile
    Affiliata

  • Marjana Ndoci
    Affiliata

  • Izabela Ndoci
    Coordinatrice

  • Simone Pellegrini
    Collaboratore
Via IV Novembre, 184 25010 Borgosatollo (BS)
Zona: Borgosatollo - Montirone - San Zeno Naviglio
Mostra su mappa
Orari: lunedì/venerdì 9.00-12.30/ 14.30-19.30, il sabato chiusura alle 16.00.
Affiliato
Borgosatollo Srl
Via IV Novembre, 184 25010 Borgosatollo (BS)

2026 Tecnocasa Franchising S.p.A. - P. IVA 08365160152 - Via Monte Bianco 60/A 20089 Rozzano (MI). Ogni agenzia ha un proprio titolare ed è autonoma. Privacy policy | Policy utilizzo | Cookie policy