Casa indipendente in vendita

Borgosatollo, Via IV Novembre
€ 118.000
4 locali 4 locali
200 Mq 200 Mq
2 bagni 2 bagni

Casa indipendente in vendita

Borgosatollo, Via IV Novembre

Descrizione annuncio

COSA SAPERE SULLA CASA:

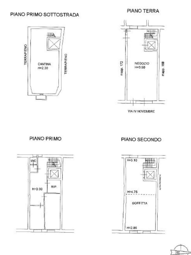
PORZIONE DI CASA CON NEGOZIO DA RISTRUTTURARE.

PARTICOLARITA' E DESCRIZIONE:

In zona centrale del paese proponiamo porzione di terra cielo, disposta su più livelli, da ristrutturare.

Entrando dal cortile interno raggiungiamo l'ingresso che conduce al piano terra dove troviamo un ampio negozio con vano ascensore.

Salendo le scale arriviamo al primo piano composto da ascensore, bagno di servizio e varie stanze attualmente al rustico che permettono di personalizzare completamente la soluzione e la disposizione degli spazi interni.

Infine c'è il secondo e ultimo piano che ospita una spaziosa soffitta con travi a vista in legno, un piccolo ripostiglio e il vano ascensore.

Non ci sono spese condominiali.

Ottimo investimento.

.

.

.

.

.

.

.

.

.

.

.

_____________________________________

CERCHI LAVORO? Cerchiamo n° 2 ragazzi/e motivati/e e dinamici/he da inserire nell'ufficio Tecnocasa di Borgosatollo. Offriamo fisso + provvigioni. Sono richiesti patente, automobile e diploma.

Per un colloquio conoscitivo inviare il CV a whatsapp 3292045889 o rivolgersi in ufficio.

Mostra tutto

Nelle vicinanze

Trasporto pubblico Trasporto pubblico
San Zeno-Folzano
San Zeno-Folzano
2,8 Km
Montirone
Montirone
2,8 Km
Borgosatollo via Molino vecchio n 14
Borgosatollo via Molino vecchio n 14
60 m
Borgosatollo via IV Novembre n 57
Borgosatollo via IV Novembre n 57
110 m
Scuole Scuole
Scuola Materna Gianni Rodari
420 m
Scuola Primaria Angelo Canossi
2,5 Km
Scuola Secondaria di Primo Grado Nella Berther
2,6 Km
Farmacia Farmacia
Farmacia Bodini
260 m
Farmacia Dott. Abbiati
2,6 Km
Supermercati Supermercati
Conad
460 m
LD Market
2,9 Km
Italmark
3,0 Km
Bar Bar
Bar La Piazzetta
2,4 Km
Discoteca Paradiso
2,6 Km
Bar 25010
2,6 Km
Bar Più o Meno
2,9 Km
Ristoranti Ristoranti
Trattoria Naviglio
2,3 Km
Ristorante al Forchettone
2,6 Km
La Lobsteria
2,7 Km
Mostra tutto

Caratteristiche

Rif.:
61188850
Piano:
Su più livelli di 3
Totale piani:
3
Camere da letto:
2
Arredamento:
Assente
Condizionamento:
Assente
Mostra tutto
Prezzo Prezzo
€ 118.000
Rata mutuo Rata mutuo
€ 551 / mese
Spese annue Spese annue
€ 0
Proponi il tuo prezzoProponi il tuo prezzo

Classe Energetica

G
G
G
G
G
G
G
G
G
EP globale non rinnovabile:
466.30 kW h/m² anno
EP invernale del fabbricato:
EP estiva del fabbricato:
Anno di costruzione:
1940
Riscaldamento:
Autonomo
Tipo impianto:
A radiatori
Tipo alimentazione:
Metano

Ti interessa visionare l'immobile?

Fissa un appuntamento  Fissa un appuntamento

Richiedi informazioni

Clicca su Leggi per aprire l'informativa
* Questi campi sono obbligatori

Calcola il tuo mutuo

Semplice e senza impegno
Anticipo

( % )
Mutuo

( % )

pochi semplici passi

inserisci i tuoi dati
Questionario completato
Grazie per aver richiesto un appuntamento senza impegno con un nostro Consulente del Credito e Assicurativo.

Hai inserito correttamente tutti i dati necessari e a breve riceverai una e-mail con un link da convalidare per inviare i tuoi dati.
Affiliato
Borgosatollo Srl
Via IV Novembre, 184 25010 Borgosatollo (BS)

Il nostro staff


  • Livio Girelli
    Affiliato

  • Giulia Bonomi
    Collaboratrice

  • Erica Cassamali
    Coordinatrice

  • Rosy Gentile
    Affiliata

  • Marjana Ndoci
    Affiliata

  • Izabela Ndoci
    Coordinatrice

  • Simone Pellegrini
    Collaboratore
Via IV Novembre, 184 25010 Borgosatollo (BS)
Zona: Borgosatollo - Montirone - San Zeno Naviglio
Mostra su mappa
Orari: lunedì/venerdì 9.00-12.30/ 14.30-19.30, il sabato chiusura alle 16.00.
Affiliato
Borgosatollo Srl
Via IV Novembre, 184 25010 Borgosatollo (BS)

2026 Tecnocasa Franchising S.p.A. - P. IVA 08365160152 - Via Monte Bianco 60/A 20089 Rozzano (MI). Ogni agenzia ha un proprio titolare ed è autonoma. Privacy policy | Policy utilizzo | Cookie policy