Casa indipendente in vendita

Borgosatollo, Via S. Giovanni Bosco
€ 193.000
Prezzo aggiornato
3 locali 3 locali
213 Mq 213 Mq
2 bagni 2 bagni

Casa indipendente in vendita

Borgosatollo, Via S. Giovanni Bosco

Descrizione annuncio

COSA SAPERE SULLA CASA:

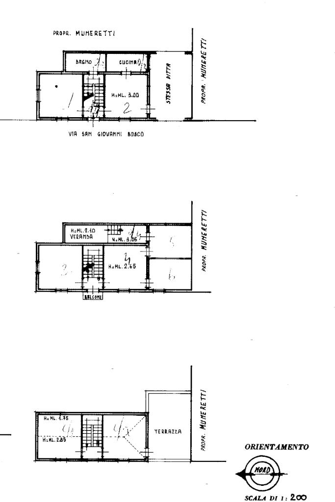
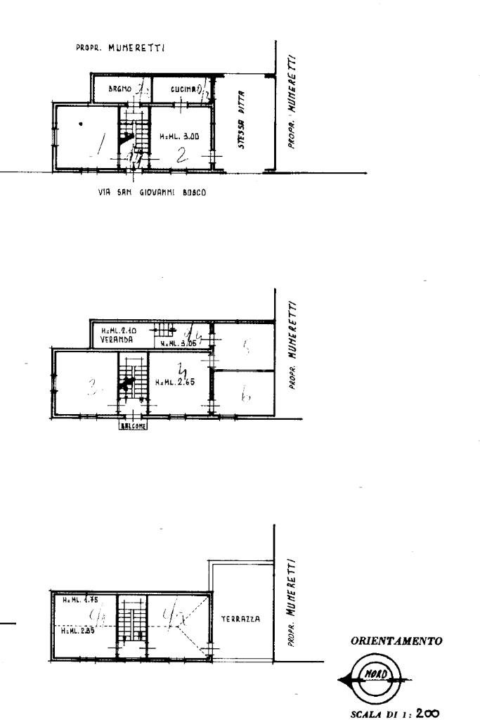
CASA INDIPENDENTE SU TRE LIVELLI CON TERRAZZA E AMPI SPAZI ABITATIVI.

PARTICOLARITA' E DESCRIZIONE:

In zona centrale del paese proponiamo una casa indipendente sviluppata su tre livelli, ideale per chi cerca ambienti confortevoli, spazi ben distribuiti e possibilità di personalizzazione.

Al piano terra, accogliente e funzionale, troviamo il soggiorno, la cucina abitabile, la sala da pranzo, disimpegno e bagno.

Al piano primo accediamo alla zona notte composta da una camera da letto matrimoniale, una camera da letto singola con cabina armadio e un ulteriore camera da letto matrimoniale con accesso diretto al disimpegno e al bagno padronale con vasca.

L'ultimo piano si presenta allo stato rustico, ideale per chi desidera personalizzare gli spazi secondo le proprie esigenze. Attualmente composto da due stanze e una terrazza.

L'immobile ha subito interventi di ristrutturazione al tetto nel 2011.

Internamente l'abitazione è stata rimodernata nel 2019 con rifacimento dell'impianto elettrico, dei bagni compresi dell'impianto idraulico e degli infissi.

E' stato inoltre introdotto il cappotto interno, il riscaldamento tramite la stufa a pellet idro e diversi climatizzatori.

Soluzione perfetta per famiglie numerose o per chi desidera vivere in spazi indipendenti senza rinunciare alla possibilità di creare ambienti su misura.

_____________________________________

CERCHI LAVORO?

Cerchiamo n° 2 ragazzi/e motivati/e e dinamici/he da inserire nell'ufficio Tecnocasa di Borgosatollo.

Offriamo fisso + provvigioni.
Sono richiesti patente, automobile e diploma.

Per un colloquio conoscitivo
inviare il CV a
whatsapp 3292045889 o rivolgersi in ufficio.

Mostra tutto

Nelle vicinanze

Trasporto pubblico Trasporto pubblico
San Zeno-Folzano
San Zeno-Folzano
2,7 Km
Montirone
Montirone
3,0 Km
Borgosatollo via IV Novembre n 57
Borgosatollo via IV Novembre n 57
40 m
Borgosatollo via Molino vecchio n 14
Borgosatollo via Molino vecchio n 14
140 m
Scuole Scuole
Scuola Materna Gianni Rodari
500 m
Scuola Primaria Angelo Canossi
2,4 Km
Scuola Secondaria di Primo Grado Nella Berther
2,5 Km
Farmacia Farmacia
Farmacia Bodini
360 m
Farmacia Dott. Abbiati
2,6 Km
Supermercati Supermercati
Conad
410 m
Il Rossetto
2,9 Km
LD Market
3,0 Km
Bar Bar
Bar La Piazzetta
2,3 Km
Discoteca Paradiso
2,5 Km
Bar 25010
2,5 Km
Bar Più o Meno
2,8 Km
Isla de Tortuga
2,9 Km
Ristoranti Ristoranti
Trattoria Naviglio
2,3 Km
Ristorante al Forchettone
2,6 Km
La Lobsteria
2,7 Km
Mostra tutto

Caratteristiche

Rif.:
61143752
Piano:
3 di 3 (Piano su più livelli)
Terrazzi:
1
Camere da letto:
3
Arredamento:
Assente
Condizionamento:
Autonomo
Mostra tutto
Prezzo Prezzo
€ 193.000
Rata mutuo Rata mutuo
€ 901 / mese
Spese annue Spese annue
€ 0
Proponi il tuo prezzoProponi il tuo prezzo
Immobile valutato con T·Valuta

Classe Energetica

F
F
F
F
F
F
F
F
F
EP invernale del fabbricato:
EP estiva del fabbricato:
Anno di costruzione:
1940
Riscaldamento:
Autonomo
Tipo impianto:
A stufa
Tipo alimentazione:
Altro

Prezzo ridotto di €1 (4%%)

Ti interessa visionare l'immobile?

Fissa un appuntamento  Fissa un appuntamento

Richiedi informazioni

Clicca su Leggi per aprire l'informativa
* Questi campi sono obbligatori

Calcola il tuo mutuo

Semplice e senza impegno
Anticipo

( % )
Mutuo

( % )

pochi semplici passi

inserisci i tuoi dati
Questionario completato
Grazie per aver richiesto un appuntamento senza impegno con un nostro Consulente del Credito e Assicurativo.

Hai inserito correttamente tutti i dati necessari e a breve riceverai una e-mail con un link da convalidare per inviare i tuoi dati.
Affiliato
Borgosatollo Srl
Via IV Novembre, 184 25010 Borgosatollo (BS)

Il nostro staff


  • Livio Girelli
    Affiliato

  • Giulia Bonomi
    Collaboratrice

  • Erica Cassamali
    Coordinatrice

  • Rosy Gentile
    Affiliata

  • Marjana Ndoci
    Affiliata

  • Izabela Ndoci
    Coordinatrice

  • Simone Pellegrini
    Collaboratore
Via IV Novembre, 184 25010 Borgosatollo (BS)
Zona: Borgosatollo - Montirone - San Zeno Naviglio
Mostra su mappa
Orari: lunedì/venerdì 9.00-12.30/ 14.30-19.30, il sabato chiusura alle 16.00.
Affiliato
Borgosatollo Srl
Via IV Novembre, 184 25010 Borgosatollo (BS)

2026 Tecnocasa Franchising S.p.A. - P. IVA 08365160152 - Via Monte Bianco 60/A 20089 Rozzano (MI). Ogni agenzia ha un proprio titolare ed è autonoma. Privacy policy | Policy utilizzo | Cookie policy