Quadrilocale in vendita

Borgosatollo, Via IV Novembre
€ 349.000
4 locali 4 locali
318 Mq 318 Mq
1 bagno 1 bagno

Quadrilocale in vendita

Borgosatollo, Via IV Novembre

Descrizione annuncio

COSA SAPERE SULLA CASA:

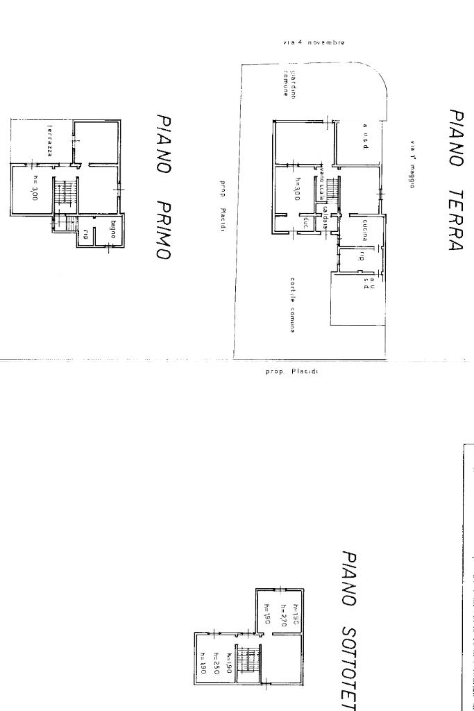
CASA INDIPENDENTE QUADRILOCALE SU QUATTRO LATI IN PIENO CENTRO PAESE CON NEGOZIO AL PIANO TERRA.

PARTICOLARITA' E DESCRIZIONE:

In posizione centralissima, proponiamo ampia casa indipendente su quattro lati, ideale per chi cerca spazi generosi e le comoditĂ  di tutti i servizi a pochi passi.

L'immobile offre ambienti versatili e un negozio al piano terra perfetto per attivitĂ , studio professionale o come investimento.

Al piano terra vi è il negozio con ingresso indipendente, una veranda luminosa e vivibile.

La zona giorno è composta da soggiorno, cucina, sala da pranzo e un grande ripostiglio con accesso diretto alla corte privata, completa di box auto.

Al piano primo troviamo la zona notte composta da tre camere da letto matrimoniali di cui una con accesso diretto all'ampio terazzo. Inoltre vi è il bagno finestrato dotato sia di doccia che di vasca.

All'ultimo piano abbiamo un ampio sottotetto suddiviso in tre stanze, perfetto come deposito, studiolo o locali hobby.

Completa la soluzione il giardino.

La proprietĂ , grazie alla sua struttura indipendente e ai molteplici ambienti, si presta a diverse soluzioni abitative e lavorative. Ottima opportunitĂ  per famiglie numerose, per chi desidera uno spazio lavoro in casa o per chi cerca un immobile con ampi margini di personalizzazione.

Il tetto è stato completamente ristrutturato nel 2010.

_____________________________________

CERCHI LAVORO?

Cerchiamo n° 2 ragazzi/e motivati/e e dinamici/he da inserire nell'ufficio Tecnocasa di Borgosatollo.

Offriamo fisso + provvigioni.
Sono richiesti patente, automobile e diploma.

Per un colloquio conoscitivo
inviare il CV a
whatsapp 3292045889 o rivolgersi in ufficio.

Mostra tutto

Nelle vicinanze

Trasporto pubblico Trasporto pubblico
San Zeno-Folzano
San Zeno-Folzano
2,6 Km
Borgosatollo via IV Novembre n 57
Borgosatollo via IV Novembre n 57
120 m
Borgosatollo via IV Novembre n 132
Borgosatollo via IV Novembre n 132
200 m
Ricariche auto elettriche Ricariche auto elettriche
Provide Cars San Zeno | EnelX
2,9 Km
Scuole Scuole
Scuola Materna Gianni Rodari
630 m
Scuola Primaria Angelo Canossi
2,3 Km
Scuola Secondaria di Primo Grado Nella Berther
2,4 Km
Farmacia Farmacia
Farmacia Bodini
490 m
Farmacia Dott. Abbiati
2,5 Km
Supermercati Supermercati
Conad
320 m
Il Rossetto
2,9 Km
Bar Bar
Bar La Piazzetta
2,2 Km
Discoteca Paradiso
2,4 Km
Bar 25010
2,4 Km
Bar PiĂš o Meno
2,7 Km
Isla de Tortuga
2,8 Km
Ristoranti Ristoranti
Trattoria Naviglio
2,2 Km
Ristorante al Forchettone
2,5 Km
La Lobsteria
2,5 Km
Mostra tutto

Caratteristiche

Rif.:
61146909
Piano:
3 di 3 (Piano su piĂš livelli)
Box:
1
Posti auto:
2
Terrazzi:
1
Camere da letto:
3
Mostra tutto
Prezzo Prezzo
€ 349.000
Rata mutuo Rata mutuo
€ 1.644 / mese
Spese annue Spese annue
€ 0
Proponi il tuo prezzoProponi il tuo prezzo
Immobile valutato con T¡Valuta

Classe Energetica

G
G
G
G
G
G
G
G
G
EP invernale del fabbricato:
EP estiva del fabbricato:
Anno di costruzione:
1931
Riscaldamento:
Autonomo
Tipo impianto:
A radiatori
Tipo alimentazione:
Metano

Ti interessa visionare l'immobile?

Fissa un appuntamento  Fissa un appuntamento

Richiedi informazioni

Clicca su Leggi per aprire l'informativa
* Questi campi sono obbligatori

Calcola il tuo mutuo

Semplice e senza impegno
Anticipo

( % )
Mutuo

( % )

pochi semplici passi

inserisci i tuoi dati
Questionario completato
Grazie per aver richiesto un appuntamento senza impegno con un nostro Consulente del Credito e Assicurativo.

Hai inserito correttamente tutti i dati necessari e a breve riceverai una e-mail con un link da convalidare per inviare i tuoi dati.
Affiliato
Borgosatollo Srl
Via IV Novembre, 184 25010 Borgosatollo (BS)

Il nostro staff


  • Livio Girelli
    Affiliato

  • Giulia Bonomi
    Collaboratrice

  • Erica Cassamali
    Coordinatrice

  • Rosy Gentile
    Affiliata

  • Marjana Ndoci
    Affiliata

  • Izabela Ndoci
    Coordinatrice

  • Simone Pellegrini
    Collaboratore
Via IV Novembre, 184 25010 Borgosatollo (BS)
Zona: Borgosatollo - Montirone - San Zeno Naviglio
Mostra su mappa
Orari: lunedĂŹ/venerdĂŹ 9.00-12.30/ 14.30-19.30, il sabato chiusura alle 16.00.
Affiliato
Borgosatollo Srl
Via IV Novembre, 184 25010 Borgosatollo (BS)

2026 Tecnocasa Franchising S.p.A. - P. IVA 08365160152 - Via Monte Bianco 60/A 20089 Rozzano (MI). Ogni agenzia ha un proprio titolare ed è autonoma. Privacy policy | Policy utilizzo | Cookie policy